Wie gut es tut, sich „comme à la maison“ zu fühlen!
Wir hatten das Vergnügen „Deschenaux Architectes“ im Rahmen des Architekturwettbewerbs für die Transformation des Bildungsbereichs und des spezialisierten Kindergartens in Givisiez, organisiert vom Verein Le Bosquet, zu begleiten.
Das Projekt „COMME à LA MAISON“ wurde dabei mit dem 1. Preis ausgezeichnet.
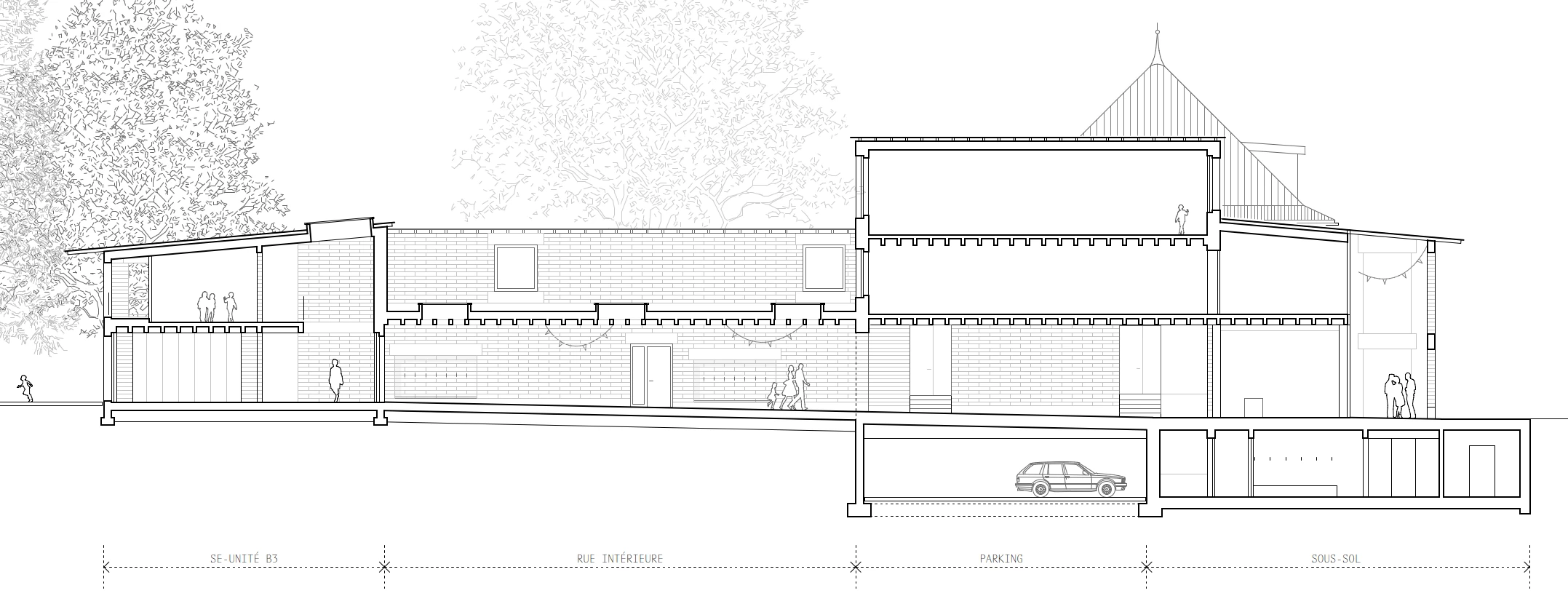
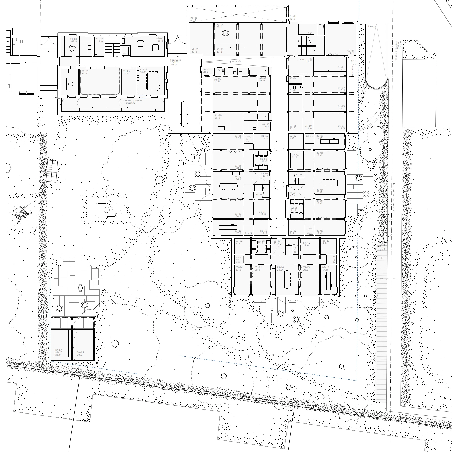
Die Jury würdigte einen Ansatz, der eine häusliche, warme und sichere Welt nachbildet, die perfekt auf Kinder von 3 Monaten bis 6 Jahren zugeschnitten ist:
„Diese Fragmentierung in ‚Häuser‘ verleiht dem Projekt einen sehr wohnlichen Maßstab, der von den Kindern leicht angenommen werden kann. Die Autoren berufen sich auf die Nähe der ‚Häuser‘, um den institutionellen Charakter zu unterstreichen. Der Vorschlag ist insgesamt sehr überzeugend.“
Wir freuen uns, unsere Begleitung fortzuführen, insbesondere bei der Entwicklung von tragenden Wänden aus Lehmziegeln, die Geschosse aus lokalem Massivholz aussteifen werden. Unser Büro wird zudem mit der Entwicklung des Wiederverwendungskonzepts für das bestehende, rückzubauende Gebäude beauftragt.
Ein zugleich sensibles, nachhaltiges und innovatives Projekt, in dem wir unser Engagement mit Freude weiterführen!