co–struct AG
As a team of passionate structural engineers we deliver innovative structural solutions for complex projects with high architectural ambitions – always in close collaboration with our clients.
Menu

The suspended sports hall

The suspended sports hall

The suspended sports hall

The suspended sports hall

The suspended sports hall

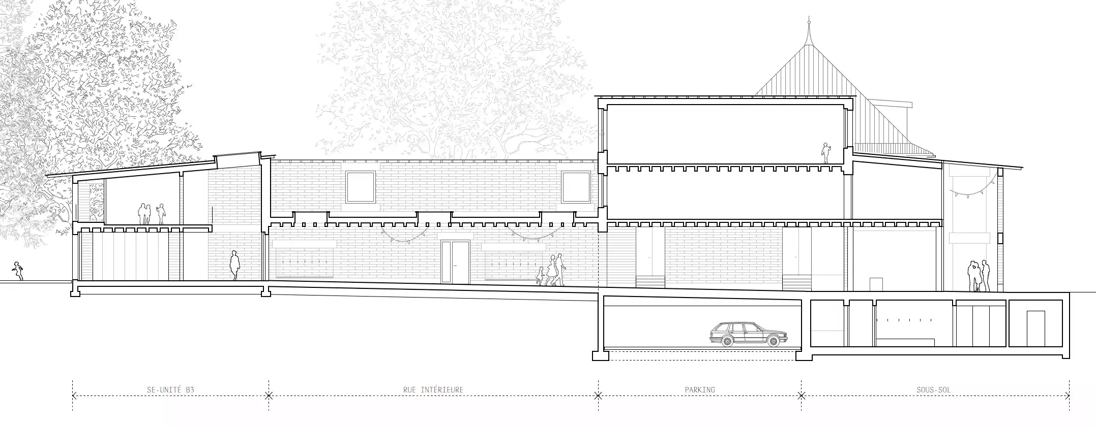
« Comme à la Maison »

« Comme à la Maison »

« Comme à la Maison »

« Comme à la Maison »

« Comme à la Maison »

New building or conversion?

New building or conversion?